oui
SERRURERIE METALLERIE
STRUCTURES METALLIQUES
Le travail de l'acier. Plans de fabrication, astuces, tutoriels...
Accueil
Plans de fabrication
Mise en oeuvre
Traçage
QCM
Boutique
Se connecter
S'inscrire
Taraudage_TP_1
Question numéro 1
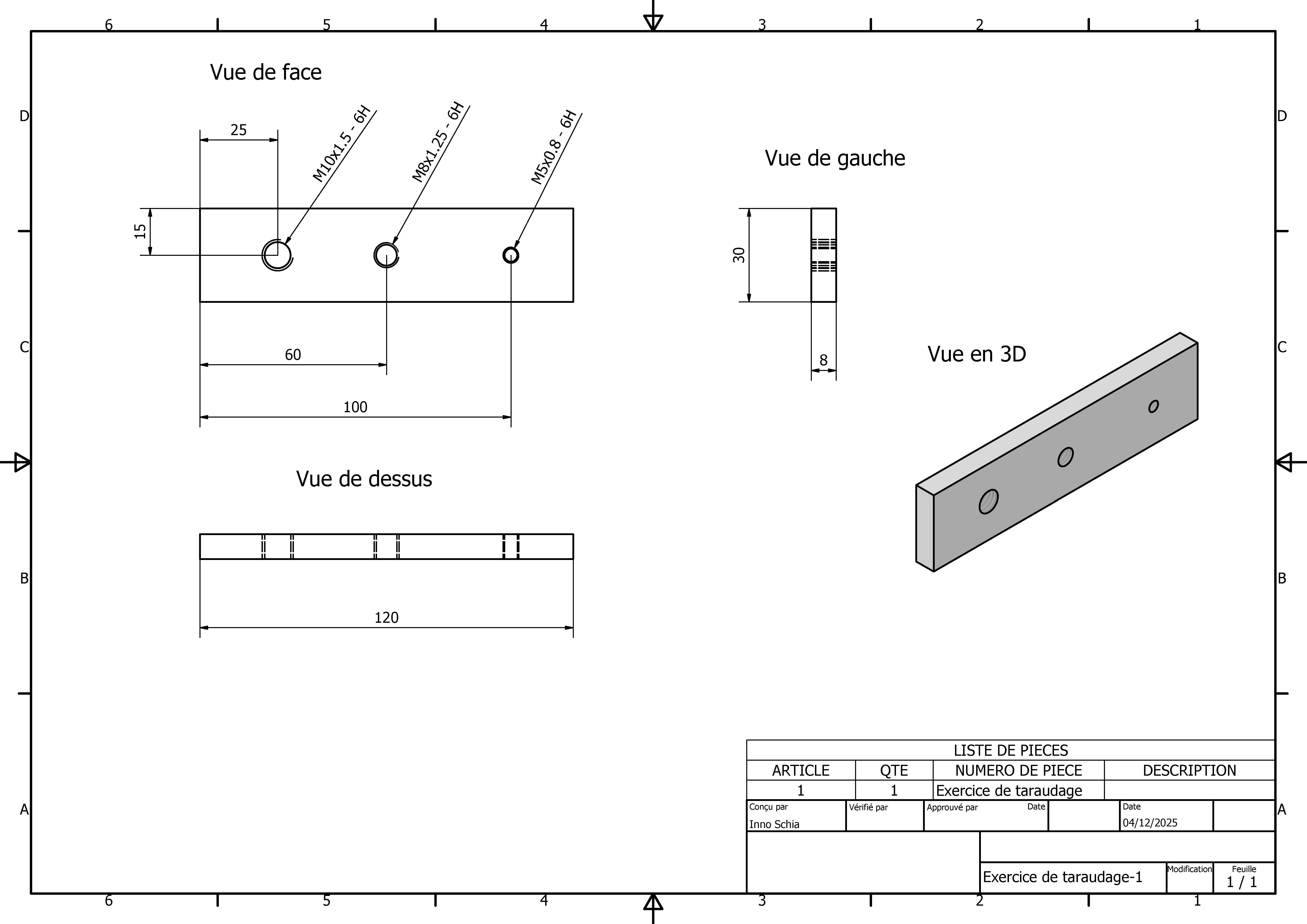
Pour votre TP de taraudage, télécharger votre plan
ICI
.
Quelle fer plat devez-vous utiliser ?
fer plat de 30 x 8
fer plat de 30 x 5
fer plat de 40 x 5
Pour ce QCM Taraudage_TP_1, il y'a 11 questions.